Freie Arztpraxis im Projekt CAMPO Breitenlee, 22. Bezirk

Barrierefreie Arztpraxis im 22. Bezirk

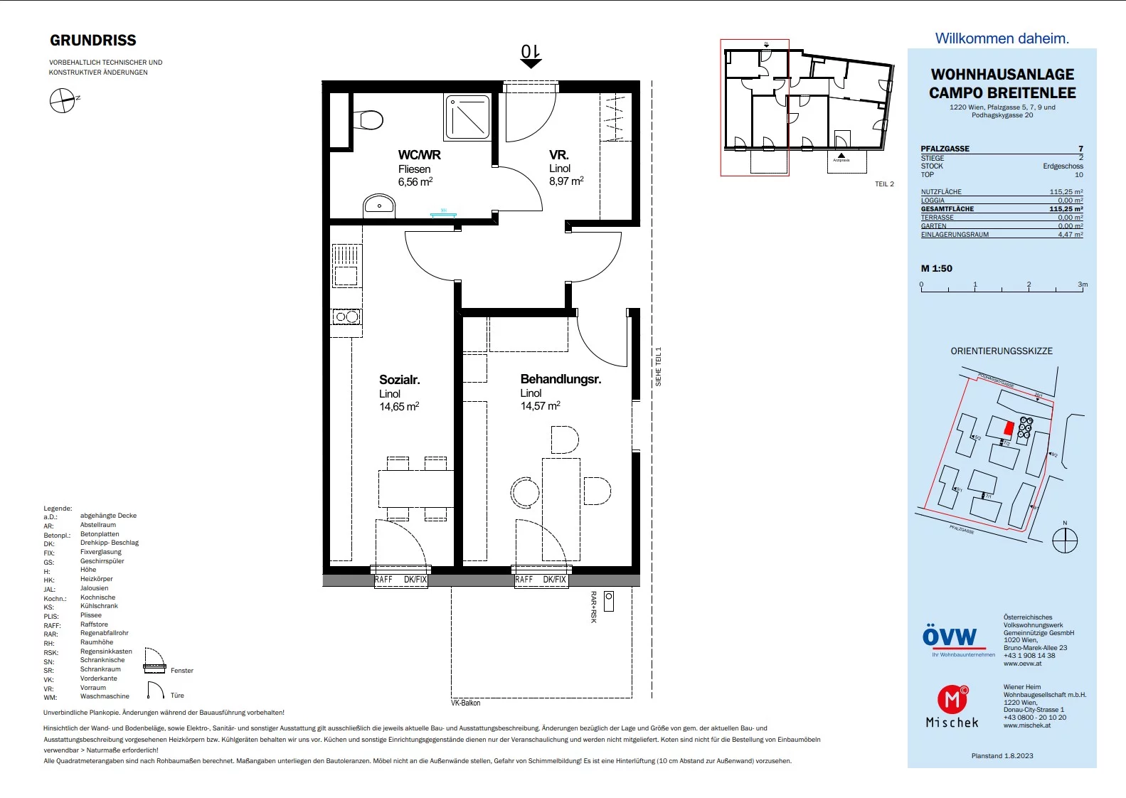
Moderne, barrierefreie Arztpraxis im Projekt CAMPO Breitenlee bietet auf 115 m², inklusive Lagerraum und Garagenplatz, eine sofort beziehbare, gut angebundene medizinische Versorgungsmöglichkeit im 22. Wiener Bezirk.

Erstellt von: | 24. Oktober 2024 | Anzeige

Arztpraxis im CAMPO Breitenlee

Pfalzgasse 7, 1220 Wien

  • 4 Zimmer, 115 m²
  • EUR 409.150
  • Sofort beziehbar

Diese moderne Arztpraxis eignet sich hervorragend für die medizinische Versorgung in einem aufstrebenden Wohn- und Geschäftsviertel. Die barrierefreie Ordination befindet sich im Erdgeschoss eines Neubauprojekts und bietet optimale Bedingungen für Arztpraxen oder ähnliche medizinische Dienstleistungen.

In dieser Galerie: 7 Bilder

Lage:
Die Praxis liegt in der Pfalzgasse 7, Stiege 2, Top 10 im Campo Breitenlee im 22. Bezirk Wiens, einem gut erreichbaren und lebendigen Viertel. Durch die Nähe zu öffentlichen Verkehrsmitteln, Apotheken und Geschäften ist die Praxis sowohl für Patienten als auch für Mitarbeiter gut angebunden.

Größe:
Die Ordination umfasst 4 Zimmer und bietet eine großzügige Nutzfläche von 115,25 m². Zusätzlich steht ein Lagerraum im 1. Untergeschoss mit 4,47 m² zur Verfügung, ideal zur Aufbewahrung von medizinischen Materialien und Ausrüstung. Ein Garagenstellplatz für die bequeme Anfahrt mit dem Auto ist im Kaufpreis enthalten.

Preis:
Der Gesamtpreis der Ordination beträgt EUR 409.150, inklusive des Garagenstellplatzes.
Aufteilung:

  • Eigenmittel: EUR 314.104
  • Förderung (teilweise rückzahlbar): EUR 95.046

Bezug:
Die Arztpraxis ist sofort beziehbar und somit bereit für eine schnelle Inbetriebnahme.

» Weitere Informationen zur Immobilie

Zusätzliche Details:

  • Barrierefrei im Erdgeschoss
  • Moderne Ausstattung im Rahmen des Neubauprojekts
  • Gute Infrastruktur: Apotheken, Einkaufsmöglichkeiten und öffentliche Verkehrsmittel in direkter Nähe

Diese Praxis bietet eine ausgezeichnete Möglichkeit, eine gut erreichbare und moderne medizinische Einrichtung in einem dynamischen Stadtteil Wiens zu betreiben.

Diese Geschichte teilen!


Hinterlassen Sie einen Kommentar!

weitere interessante Beiträge